Agat II bez garażu bliźniak B-BL2



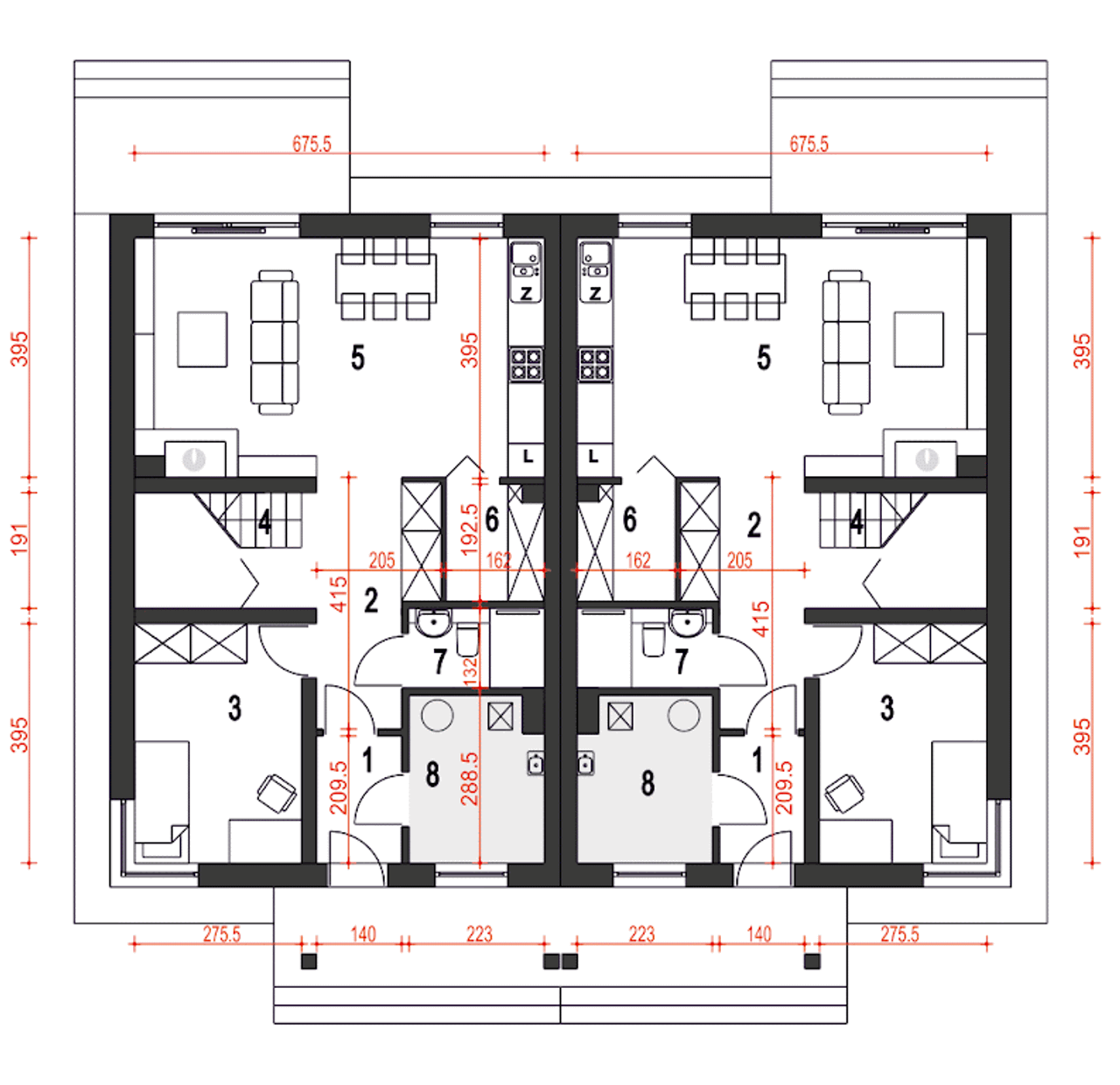
1. Wiatrołap | 2,80 m² |
2. Hol | 10,70 m² |
3. Pokój | 10,10 m² |
4. Schody | 4,20 m² |
5. Salon z kuchnią | 26,20 m² |
6. Spiżarnia | 2,80 m² |
7. łazienka | 2,80 m² |
8. Pom. tech. z co | 5,80 m² |
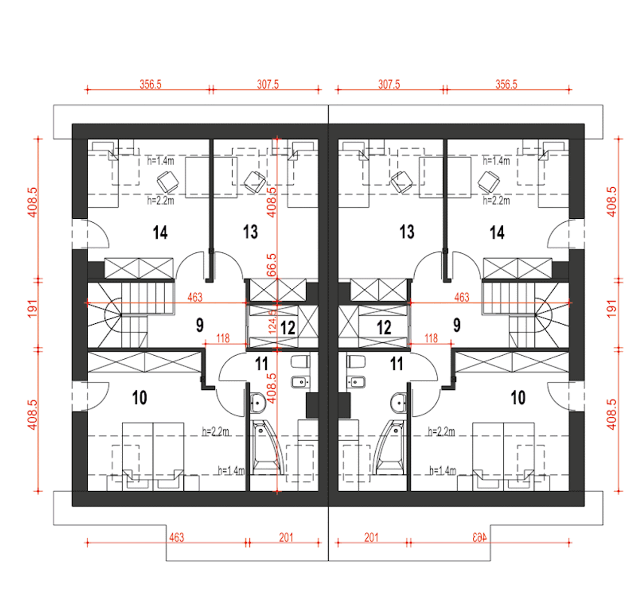
1. Hol | 6,00 (6,00) m² |
2. Pokój | 12,50 (17,20) m² |
3. łazienka | 5,70 (7,80) m² |
4. Garderoba | 2,60 (2,60) m² |
5. Pokój | 10,20 (13,40) m² |
6. Pokój | 10,40 (14,10) m² |
Wypełnij formularz i otrzymaj rysunki w pdf z dokładnymi wymiarami budynku i pomieszczeń (długość, szerokość, wysokość) dla projektu Agat II bez garażu bliźniak B-BL1
Pow. użytkowa 213.8 m² |
Ilość pokoi 5 |
Powierzchnia zabudowy 170.2 m² |
Kondygnacje parterowy+poddasze |
Garaż bez garażu |
Technologia murowany |
Szerokość działki 26.6 m |
Obiekt dom |
Typ domu bliźniak i dwurodzinny |
Powierzchnia dachu 273.6 m² |
Przechowywanie w kuchni spiżarnia |
Wysokość budynku 8.6 m |
Długość działki 19.3 m |
Bryła budynku prosta bryła |
Styl budynku tradycyjny |
Liczba łazieniek 2 |
Kąt nachylenia dachu 35 ° |
Strop gęstożebrowy |
Szerokość budynku 7.5 m |
Kominek kominek w projekcie |
Kalenica równoległa do drogi |
Długość budynku 11.3 m |
Rodzaj dachu dwuspadowy |
Piwnica bez podpiwniczenia |
Koszty budowy tylko z kosztorysem, 200-250 tys. |
Pow. użytkowa 213.8 m² |
Powierzchnia zabudowy 170.2 m² |
Garaż bez garażu |
Szerokość działki 26.6 m |
Typ domu bliźniak i dwurodzinny |
Przechowywanie w kuchni spiżarnia |
Długość działki 19.3 m |
Styl budynku tradycyjny |
Kąt nachylenia dachu 35 ° |
Szerokość budynku 7.5 m |
Kalenica równoległa do drogi |
Rodzaj dachu dwuspadowy |
Koszty budowy tylko z kosztorysem, 200-250 tys. |
Ilość pokoi 5 |
Kondygnacje parterowy+poddasze |
Technologia murowany |
Obiekt dom |
Powierzchnia dachu 273.6 m² |
Wysokość budynku 8.6 m |
Bryła budynku prosta bryła |
Liczba łazieniek 2 |
Strop gęstożebrowy |
Kominek kominek w projekcie |
Długość budynku 11.3 m |
Piwnica bez podpiwniczenia |
Kupując projekt w technologii murowanej powinieneś budować dom murowany. Zupełna zmiana technologii na szkieletową wymaga przeprojektowania całego budynku ( zmieniają się obciążenia, fundamenty, konstrukcja dachu). Wydamy zgodę na takie przeprojektowanie jednak wiążę się to z dużymi kosztami. Istnieją firmy wykonawcze, które podejmują się zmiany technologii budowy bezpłatnie przy skorzystaniu z ich usług wykonawczych. Zdarza się, że pracownia architektoniczna przygotowuje warianty konkretnego projektu przewidując także inne technologie. Prosimy o sprawdzenie czy istnieje poszukiwana wersja projektu, w zakładce - warianty projektu.
Zwężenie/poszerzenie budynku* to nic innego jak zmiana w projekcie. Istnieje możliwość wprowadzenia takich zmian, we własnym zakresie (podczas adaptacji). *zwężenie/poszerzenie budynku nie powinno stanowić problemu w przypadku domów o dachu dwuspadowym jeśli wiąże się to z wydłużeniem/skróceniem kalenicy dachu.
Poznaj praktyczne porady ekspertów, które ułatwią Ci każdy etap budowy i od wyboru wymarzonego domu po jego wykończenie. Zyskaj pewność, że podejmujesz najlepsze decyzje dzięki sprawdzonym wskazówkom od specjalistów z planz.pl
Wycena szacunkowa, w kwotach netto, nie zawiera instalacji.
bezpłatnie (0zł)
przelew zwykły / PayNow
przy odbiorze
3-5 dni roboczych (jeśli projekt nie jest koncepcją)
Zaskakująco świeże podejście do klasycznego projektu. Idealne rozwiązanie dla osób poszukujących minimalistycznej elegancji.
Wybierz wygodny dla Ciebie czas kontaktu z naszym Doradcą Technicznym.