22 299 20 00 (pn-nd 9.30 do 19.30)

Gotowy projekt domu Aga Solo (ID: 34385)

4490 2025-11-24
Aga Solo - 115.7m²
Projekt dostępny od ręki
Gwarantujemy najniższą cenę
4490 zł
W cenie projektu:
📣 GRATIS: WIERTARKA UDAROWA
  • Tablica + dziennik budowy
  • 16 projektów ogrodowych
  • Darmowa wysyłka (kurier, paczkomat, pobranie)
  • 30 dni na zwrot
  • Pozwolenie na zmiany z podpisem i pieczęcią autora
  • GRATIS: Wiertarka Udarowa
22 299 20 00 (pn-nd 9.30 do 19.30)

Zawartość projektu

3 egzemplarze projektu archtektoniczno budowlanego + 3 egzemplarze projektu technicznego.

Dokumentacja projektowa zgodnie z nowymi przepisami WT2021 dostarczana jest w formie: 3+3 egzemplarze.
Czyli w dwóch częściach zawierających:
I - projekt architektoniczno-budowlany złożony z opisu technicznego oraz rysunków;
II - projekt techniczny, obejmujący: konstrukcję, instalacje (wodno-kanalizacyjną, c.o., elektryczną, gazową – jeśli występują) ze szczegółowym opisem i rysunkami oraz charakterystykę energetyczną.
 
W branży architektonicznej znajdują się:

- opis techniczny (wraz z analizą techniczną, środowiskową i ekonomiczną)
- rzuty wszystkich kondygnacji- pokazuje rozmieszczenie poszczególnych pomieszczeń i ich wymiary, powierzchnie, rozmieszczenie ścian, rozmieszczenie otworów drzwiowych, okiennych, urządzeń kuchennych i sanitarnych
- rzut więźby dachowej - pokazuje układ elementów konstrukcyjnych dachu i ich przekroje, zestawienie elementów więźby dachowej
- rzut dachu - ukazuje jego kształt, wymiary, kąt nachylenia połaci, rozmieszczenie okien połaciowych, lukarn, świetlików i rur spustowych, pokazuje rozmieszczenie kominów i informuje o sposobie odwodnienia: rozmieszczeniu i rozmiarach rynien
- przekroje - pokazują wszystkie elementy budynku po przecięciu go wzdłuż lub w poprzek od dachu do fundamentów tj. warstwy podłogi, stropów i dachu
- elewacje - pokazują dokładny wygląd domu od frontu, z tyłu i z boków

Dodatkowo w projekcie znajduje się:
- aksonometria więźby dachowej - przedstawia widok aksonometryczny więźby i jej elementów (dla dachów skomplikowanych)
- zestawienia stolarki okiennej i drzwiowej - wykazy okien i drzwi zawartych w projekcie i sposób ich otwierania

Projekt techniczny zawiera:

- projekt konstrukcji: zawiera opis techniczny, obliczenia statyczno-wytrzymałościowe, rzuty fundamentów i płyt stropowych w skali 1:50, rysunki detali konstrukcyjnych (zbrojenie schodów, słupów, wieńców, nadproży), zestawienia stali konstrukcyjnej

- projekt instalacji sanitarnych: zawiera opis techniczny oraz rysunki z rozmieszczeniem elementów instalacji: wodno-kanalizacyjnej, centralnego ogrzewania, gazowej - w skali 1:50
- projekt instalacji elektrycznej: zawiera opis techniczny, schemat ideowy oraz rysunki z rozmieszczeniem elementów instalacji: wodno-kanalizacyjnej, centralnego ogrzewania, gazowej - w skali 1:50 oraz opis zastosowanych rozwiązań
- projekt instalacji wentylacji mechanicznej (o ile występuje): zawiera opis techniczny oraz rysunki z rozmieszczeniem elementów instalacji

 
Zawartość projektu nie dotyczy budynków gospodarczych, garaży oraz obiektów malej architektury.
Zawartość projektów bez rozrysowanej na rzucie kotłowni/łazienki/kuchni może nie obejmować schematów c.o. i wodno-kanalizacyjnych. W przypadku obiektów małej architektury - również może nie zawierać schematów instalacji elektrycznej.

Rzuty gotowego projektu domu Aga Solo

1. Pokój dzienny 23,78 m²
2. Kuchnia 12,89 m²
3. Wiatrołap 3,19 m²
4. łazienka 2,76 m²
5. Pokój 12,16 m²
6. Hol 9,87 m²
7. Kotłownia 4,90 m²
8. Klatka schodowa 2,10 m²
9. Korytarz 3,00 m²
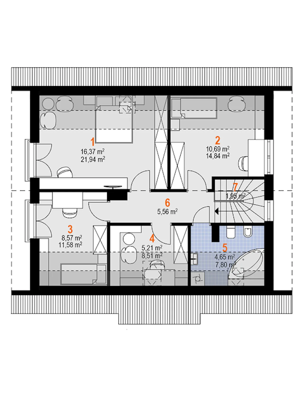
1. Pokój 16,37 (21,90) m²
2. Pokój 10,69 (14,80) m²
3. Pokój 8,57 (11,60) m²
4. Gabinet 5,21 (8,50) m²
5. łazienka 4,65 (7,80) m²
6. Przedpokój 5,56 (5,60) m²
7. Klatka schodowa 2,00 (2,00) m²

Zapoznaj się ze szczegółami projektu - pobierz bezpłatne rysunki do: Aga Solo

Wypełnij formularz i otrzymaj rysunki w pdf z dokładnymi wymiarami budynku i pomieszczeń (długość, szerokość, wysokość) dla projektu Aga Solo

Parametry Techniczne gotowego projektu domu Aga Solo

Pow. użytkowa 115.7 m²
Powierzchnia zabudowy 93.33 m²
Kondygnacje parterowy+poddasze
Garaż bez garażu
Technologia murowany
Szerokość działki 18.4 m
Obiekt dom
Typ domu jednorodzinny całoroczny
Powierzchnia dachu 177.38 m²
Piwnica bez podpiwniczenia
Styl budynku tradycyjny
Wysokość budynku 8.93 m
Długość działki 16.9 m
Kąt nachylenia dachu 45 °
Rodzaj dachu dwuspadowy
Kubatura 577.65 m³
Kalenica równoległa do drogi
Kominek kominek opcjonalnie

Nasze prawdziwe opinie z Google

Częste pytania

Czy projekty z Planz.pl są kompletne?

Tak. Projekty dostępne na Planz.pl zawierają pełną dokumentację potrzebną do uzyskania pozwolenia na budowę i stanowią gwarancję sprawnej realizacji budowy.

Jesteśmy oficjalnym partnerem ponad 50 pracowni architektonicznych z całej Polski - dlatego każdy projekt pochodzi wyłącznie od autorów zrzeszonych w Izbie Architektów RP. 

Planz.pl to polska firma działającą na rynku od 12 lat. Mamy tysiące zadowolonych klientów, doskonałe opinie i oferujemy wsparcie również po zakupie, doradzamy, pomagamy w adaptacji i pozostajemy w kontakcie na każdym etapie inwestycji.

Dodatkowo do każdego projektu dodajemy tablicę informacyjną, dziennik budowy oraz 16 projektów elektronicznych drewnianej architektury ogrodowej. A dzięki naszej współpracy z markami Blaupunkt i PRIME3 oferujemy możliwość otrzymania sprzętu elektrycznego w formie atrakcyjnego gratisu.

Wybierając Planz.pl, otrzymujesz ten sam oryginalny projekt od autora, wzbogacony o realne dodatki, które ułatwiają rozpoczęcie budowy.

Czy mogę wprowadzić zmiany w projekcie?

Co zrobić gdy wybrany dom nie mieści się na działce?

Jakie zmiany można wprowadzić w projekcie?

Porady ekspertów

Poznaj praktyczne porady ekspertów, które ułatwią Ci każdy etap budowy i od wyboru wymarzonego domu po jego wykończenie. Zyskaj pewność, że podejmujesz najlepsze decyzje dzięki sprawdzonym wskazówkom od specjalistów z planz.pl

Co zawiera projekt

  • ✓ 3 x projekt architektoniczno-budowlany ➞ szczegóły
  • ✓ Projekty techniczne ➞ szczegóły
  • ✓ charakterystyka energetyczna (do projektów domów)
  • ✓ zgoda na zmiany w projekcie ➞ szczegóły
  • ✓ GRATIS: Wiertarka (do projektów w cenie od 3000 zł)
  • ✓ GRATIS: 16 projektów (drewutni, altany i wiaty)
  • ✓ GRATIS: tablica i dziennik budowy
  • ✓ GRATIS: przesyłka kurierska

Dodatki do projektu Aga Solo

Dodatki możesz kupić razem z projektem lub dokupić po czasie

[Archeton] Dodatkowy egzemplarz projektu (350 zł)

[Archeton] Kosztorys wersja elektroniczna (450 zł)

[Archeton] Kosztorys wersja drukowana (260 zł)

[Archeton] Dodatkowy egzemplarz projektu (550 zł)

[Archeton] Pompa ciepła + ogrzewanie podłogowe z charakterystyką (500 zł)

[Archeton] Paliwo stałe + charakterysytka (500 zł)

[Archeton] Architektura w pdf (0 zł)

[Planz] Tablica budowlana (0 zł)

[Planz] Dziennik budowy (0 zł)

[Planz] Wiertarka udarowa (0 zł)

[Planz] Zgoda na zmiany w projekcie (0 zł)

[Planz] Projekty architektury ogrodowej (0 zł)

[Planz] Charakterystyka energetyczna, tylko dla domów całorocznych (0 zł)

Wysyłka i płatność za projekt Aga Solo

Koszty wysyłki

bezpłatnie (0zł)

Formy płatności

przelew zwykły / PayNow
przy odbiorze

Czas oczekiwania

2-5 dni roboczych (jeśli projekt nie wymaga aktualizacji)

 

Komentarze / pytania do projektu domu Aga Solo

Ania

Projekt Aga Solo jest wyjątkowy. Zachwyca prostotą. Nowoczesny wygląd przyciąga uwagę. Przemyślany układ pomieszczeń robi wrażenie. Duże okna dodają uroku. Salon wygląda przestronnie. Kuchnia jest funkcjonalna. Sypialnie zachwycają przytulnością. Taras kusi wypoczynkiem. Wygląd zewnętrzny zapada w pamięć. Myślę o zakupie projektu i budowie tego domu.

Ryszard Czapla LinkedIn
PRACOWNIA: Archeton