A-134 z bali



Wypełnij formularz i otrzymaj rysunki w pdf z dokładnymi wymiarami budynku i pomieszczeń (długość, szerokość, wysokość) dla projektu A-134 szkielet drewniany
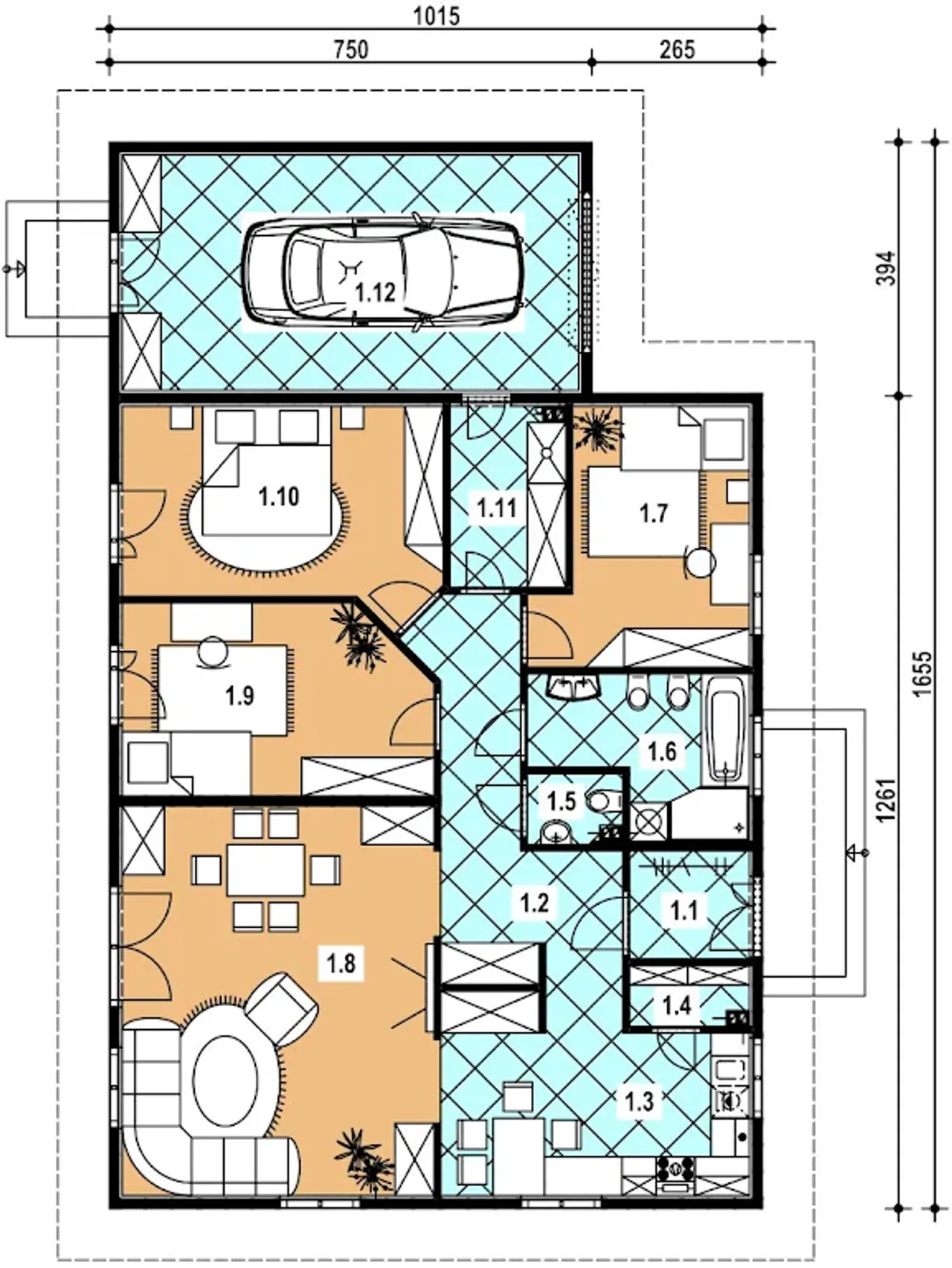
Pow. użytkowa 114.5 m² |
Ilość pokoi 4 |
Powierzchnia zabudowy 157.6 m² |
Kondygnacje parterowy |
Garaż 1 stanowisko |
Technologia szkielet/drewniany |
Szerokość działki 25 m |
Obiekt dom |
Typ domu jednorodzinny całoroczny |
Styl budynku tradycyjny |
Liczba łazieniek 1 |
Kąt nachylenia dachu 30 ° |
Szerokość budynku 16.55 m |
Kominek kominek opcjonalnie |
Strop drewniany |
Długość budynku 10.15 m |
Rodzaj garażu przyklejony |
Piwnica bez podpiwniczenia |
Kalenica równoległa do drogi |
Kubatura 772.5 m³ |
Rodzaj dachu dwuspadowy |
Funkcje dodatkowe z dwoma wejściami |
Wysokość budynku 6.1 m |
Przechowywanie w kuchni spiżarnia |
Długość działki 18.5 m |
Bryła budynku prosta bryła |
Koszty budowy 300-350 tys., tylko z kosztorysem |
Pow. użytkowa 114.5 m² |
Powierzchnia zabudowy 157.6 m² |
Garaż 1 stanowisko |
Szerokość działki 25 m |
Typ domu jednorodzinny całoroczny |
Liczba łazieniek 1 |
Szerokość budynku 16.55 m |
Strop drewniany |
Rodzaj garażu przyklejony |
Kalenica równoległa do drogi |
Rodzaj dachu dwuspadowy |
Wysokość budynku 6.1 m |
Długość działki 18.5 m |
Koszty budowy 300-350 tys., tylko z kosztorysem |
Ilość pokoi 4 |
Kondygnacje parterowy |
Technologia szkielet/drewniany |
Obiekt dom |
Styl budynku tradycyjny |
Kąt nachylenia dachu 30 ° |
Kominek kominek opcjonalnie |
Długość budynku 10.15 m |
Piwnica bez podpiwniczenia |
Kubatura 772.5 m³ |
Funkcje dodatkowe z dwoma wejściami |
Przechowywanie w kuchni spiżarnia |
Bryła budynku prosta bryła |
Kupując projekt w technologii murowanej powinieneś budować dom murowany. Zupełna zmiana technologii na szkieletową wymaga przeprojektowania całego budynku ( zmieniają się obciążenia, fundamenty, konstrukcja dachu). Wydamy zgodę na takie przeprojektowanie jednak wiążę się to z dużymi kosztami. Istnieją firmy wykonawcze, które podejmują się zmiany technologii budowy bezpłatnie przy skorzystaniu z ich usług wykonawczych. Zdarza się, że pracownia architektoniczna przygotowuje warianty konkretnego projektu przewidując także inne technologie. Prosimy o sprawdzenie czy istnieje poszukiwana wersja projektu, w zakładce - warianty projektu.
Zwężenie/poszerzenie budynku* to nic innego jak zmiana w projekcie. Istnieje możliwość wprowadzenia takich zmian, we własnym zakresie (podczas adaptacji). *zwężenie/poszerzenie budynku nie powinno stanowić problemu w przypadku domów o dachu dwuspadowym jeśli wiąże się to z wydłużeniem/skróceniem kalenicy dachu.
Poznaj praktyczne porady ekspertów, które ułatwią Ci każdy etap budowy i od wyboru wymarzonego domu po jego wykończenie. Zyskaj pewność, że podejmujesz najlepsze decyzje dzięki sprawdzonym wskazówkom od specjalistów z planz.pl
Wycena szacunkowa, w kwotach netto, nie zawiera instalacji.
bezpłatnie (0zł)
przelew zwykły / PayNow
przy odbiorze
3-5 dni roboczych (jeśli projekt nie wymaga aktualizacji)
Wybierz wygodny dla Ciebie czas kontaktu z naszym Doradcą Technicznym.