TANIEJ O 339 zł
2900 zł
2561 zł
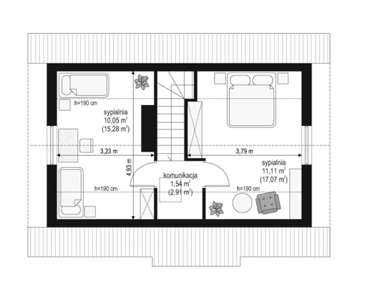
L-239 mur




Rzut parteru L-239 mur
Zobacz również projektów domów tanich w budowie, których koszty nie przekraczają 200 000 zł.
Wybierz wygodny dla Ciebie czas kontaktu z naszym Doradcą Technicznym.